プラン一覧に戻る
プラン詳細
43055
リビング階段
パントリー
将来間仕切り
リビング収納
| 玄関方位 | 西 |
| 階高 | 2階 |
| 部屋数 | 3LDK |
| 延床面積 | 24坪 (80㎡) |
| 工事面積 | 27坪 (89㎡) |
![[外観1]](https://s3-ap-northeast-1.amazonaws.com/plandatabase-prod/plan_image/104963/1/7WQm6thHPR34uNkr.jpg)
![[外観2]](https://s3-ap-northeast-1.amazonaws.com/plandatabase-prod/plan_image/104963/1/X1TFYRDOqlSmPbVf.jpg)
![[外観3]](https://s3-ap-northeast-1.amazonaws.com/plandatabase-prod/plan_image/104963/1/mSJKHd8L5fnUbk47.jpg)
![[内観]](https://s3-ap-northeast-1.amazonaws.com/plandatabase-prod/plan_image/104963/1/FjGwTZhdMfo1r3O6.jpg)
![[1F 平面]](https://s3-ap-northeast-1.amazonaws.com/plandatabase-prod/plan_image/104963/1/mc15USKxBkZ37H4u.jpg)
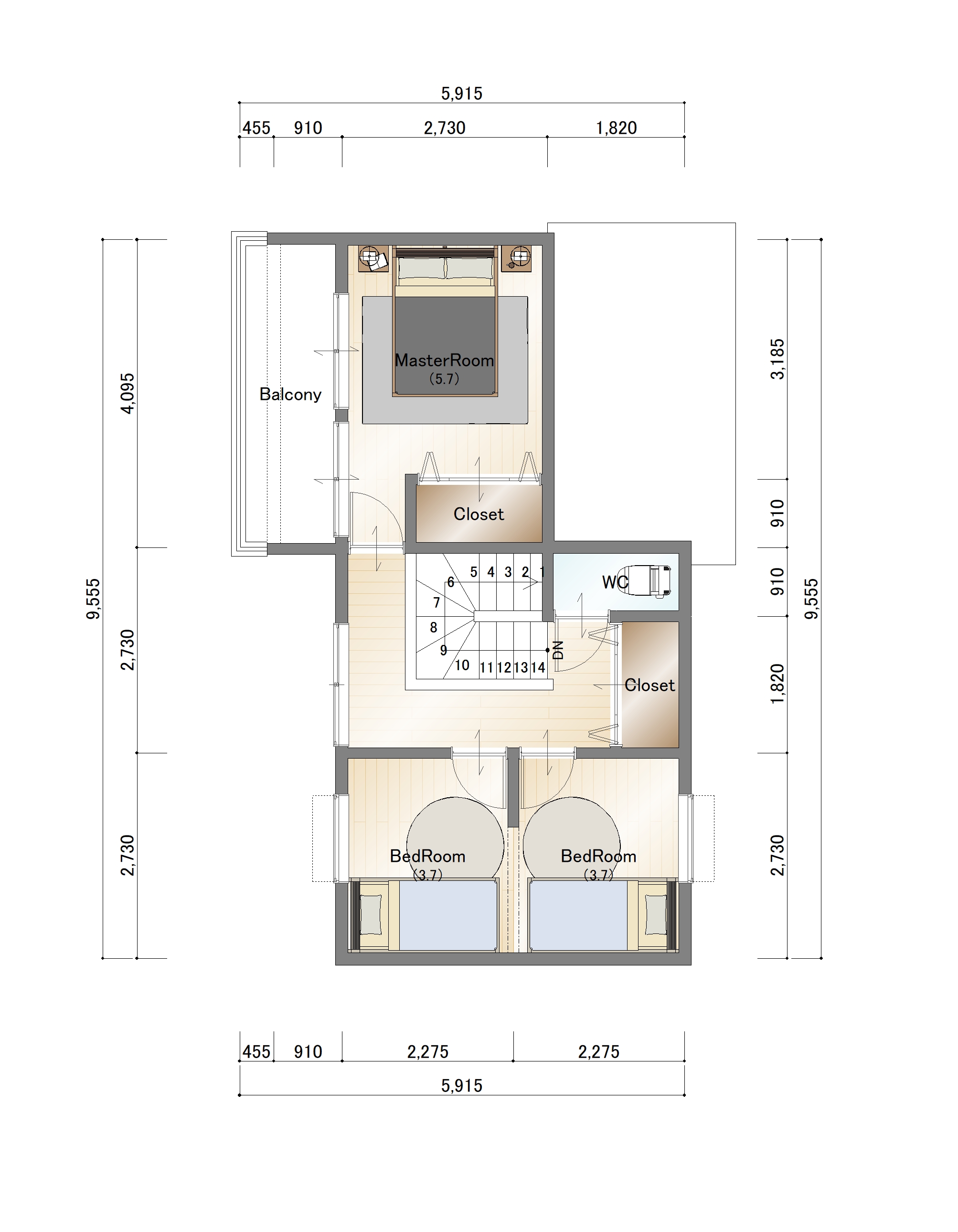
![[2F 平面]](https://s3-ap-northeast-1.amazonaws.com/plandatabase-prod/plan_image/104963/1/k7clSwQn9eizhMuK.jpg)
![[1F 俯瞰]](https://s3-ap-northeast-1.amazonaws.com/plandatabase-prod/plan_image/104963/1/6HcBT8MiwkJvusoA.jpg)
![[2F 俯瞰]](https://s3-ap-northeast-1.amazonaws.com/plandatabase-prod/plan_image/104963/1/Nl9ToKMbXp2DskOA.jpg)